Apartament cu 4 camere de vânzare C405
BUILDING
U2
APARTMENT NO.
C405
Apartament u 4 camere de vânzare
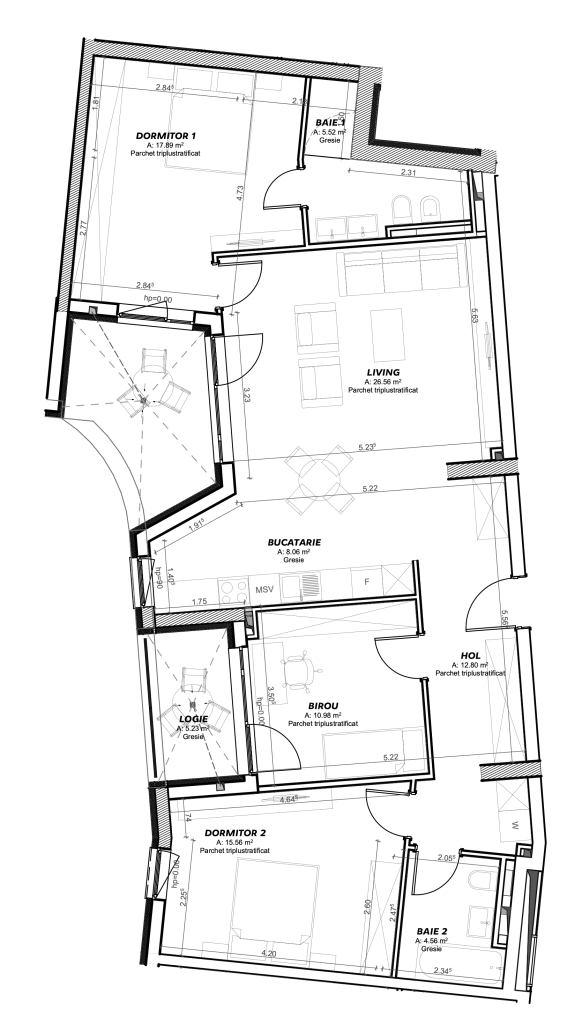
Apartament cu 4 camere in ISHO Riverside U2, compartimentat inteligent, situat la etajul 4 cu zone vitrate ample care ofera o vedere deosebita asupra raului gradinii private si Begai. Imobilul este compus din hol acces, trei dormitoare, doua grupuri sanitare, living generos cu bucatarie si doua terase unde va puteti bucurati de linistea raului Bega. Toate apartamentele ISHO Riverside inglobeaza materiale de ultima generatie si finisaje premium, precum parchet din lemn triplustratificat de la Haro Germania, gresie si faianta Marazzi, obiecte sanitare Hansgrohe si sistem de smart home cu control individual al sistemului de incalzire si securitate.


Characteristics
Sanitary Objects
Ceramic Objects
Battery
Elevator
Premium Parquet
Interior Doors
Programează o vizită
*Prețurile sunt exprimate în euro și nu conțin TVA. Prețurile sunt orientative și nu reprezintă o ofertă în sensul legii. Dezvoltatorul își rezervă dreptul să modifice prețurile fără un anunț prealabil.
** Cota de TVA se va aplica conform legislației fiscale în vigoare.




































